物件詳細情報
| 交通 |
京王線 / 笹塚駅 徒歩4分 |
| その他交通 |
京王線 / 代田橋駅 徒歩12分 京王線 / 幡ヶ谷駅 徒歩15分
|
| 所在地 |
東京都渋谷区笹塚2丁目 |
| 物件種目 |
貸マンション |
| 賃料 |
7万円 |
管理費等 |
2,000円 |
| 敷金 / 保証金 |
なし/1ヶ月 |
礼金 |
なし |
| 敷引 |
- |
保証金償却 |
- |
| その他一時金 |
契約事務手数料:11,000円、 24時間生活サポート:16,500円、 退去時ハウスクリーニング:38,500円、 退去時エアコン分解清掃:11,000円、 鍵交換代等:33,000円~ |
保険等 |
加入要 / 2年間 20,000円 |
| 維持費等 |
- |
| 建物名・部屋番号 |
ジョイフル笹塚 |
| 設備 |
収納スペース シューズボックス モニタ付インターホン 洗面台 バス・トイレ同室 洗濯機置場 都市ガス バルコニー 駐輪場 トイレ |
| 備考 |
賃貸保証等:加入要 初回契約時:50%、更新時:10,000円、1年毎 お客様の内容によって保証料変更あり バルコニー:あり ・保証金契約時償却 に原状回復費用は含まれません ・短期解約違約金有 1年未満の解約で賃料管理費の総額2ヶ月分、1年以上2年未満の解約で賃料管理費の総額1ヶ月分 ・法人契約の場合、短期解約違約金応相談 ・喫煙は原則禁止 損耗修繕は借主負担 ・解約予告2ヶ月前 ・保証金契約時償却に原状回復費用は含まれません ・短期解約違約金有 1年未満の解約で賃料管理費の総額2ヶ月分、1年以上2年未満の解約で賃料管理費の総額1ヶ月分 ・法人契約の場合、短期解約違約金応相談 ・喫煙は原則禁止 損耗修繕は借主負担 ・解約予告2ヶ月前
|
| エネルギー消費性能 |
- |
断熱性能 |
- |
| 目安光熱費 |
- |
|
|
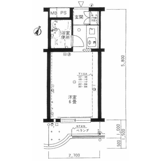
| 間取り |
1K(洋室6) |
主要採光面 |
南 |
| 専有面積 |
13.71㎡ |
階建/階 |
4階建/2階 |
| 築年月 |
1984年3月(築41年9ヶ月) |
建物構造 |
RC |
| 総戸数 |
- |
|
|
| 駐車場 |
- |
バイク置き場 |
なし |
| 駐輪場 |
有 |
ペット |
- |
| 契約期間 |
2年 |
現況 |
空家 |
| 条件等 |
- |
入居可能時期 |
即時 |
| 更新料 |
新賃料 1ヶ月 |
|
|
| 物件番号 |
1140599710 |
|
|
| 情報公開日 |
2025/08/21 |
次回更新予定日 |
2025/11/19 |
※「-」と表示されている項目については、情報提供会社にご確認ください。
情報提供会社
(株)エコロジーホーム 明大前店
- 交通:
- 京王線/明大前 徒歩2分
- 住所:
- 東京都世田谷区松原1丁目38-10
- TEL:
- 03-5300-1100
- FAX:
- 03-5376-1118
- 所属団体など:
| (公社)東京都宅地建物取引業協会会員 |
| (公社)首都圏不動産公正取引協議会加盟 |
- 取引態様:
- 仲介
- 免許番号:
- 東京都知事免許(7)第70207号
メールでお問い合わせ